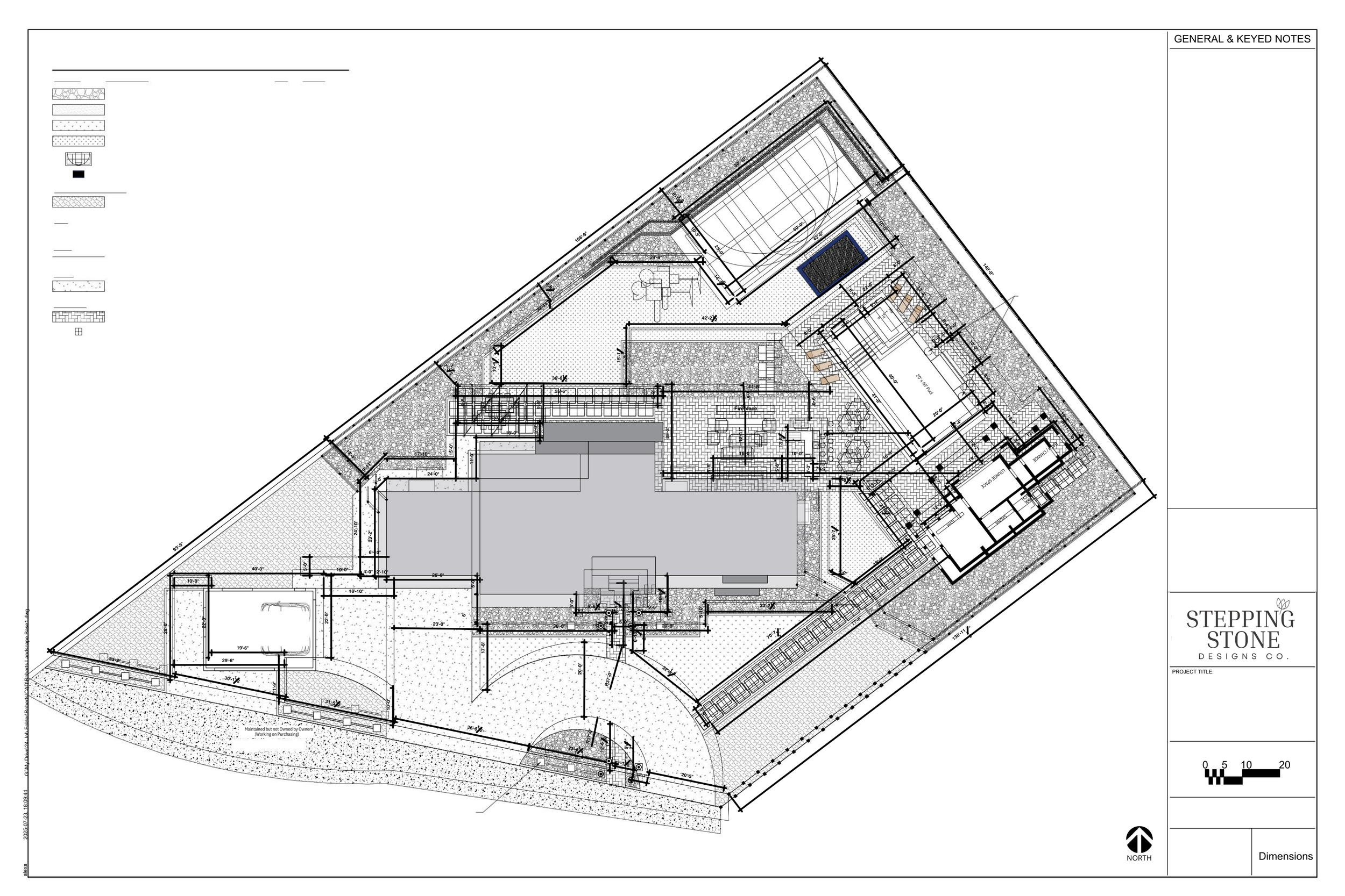
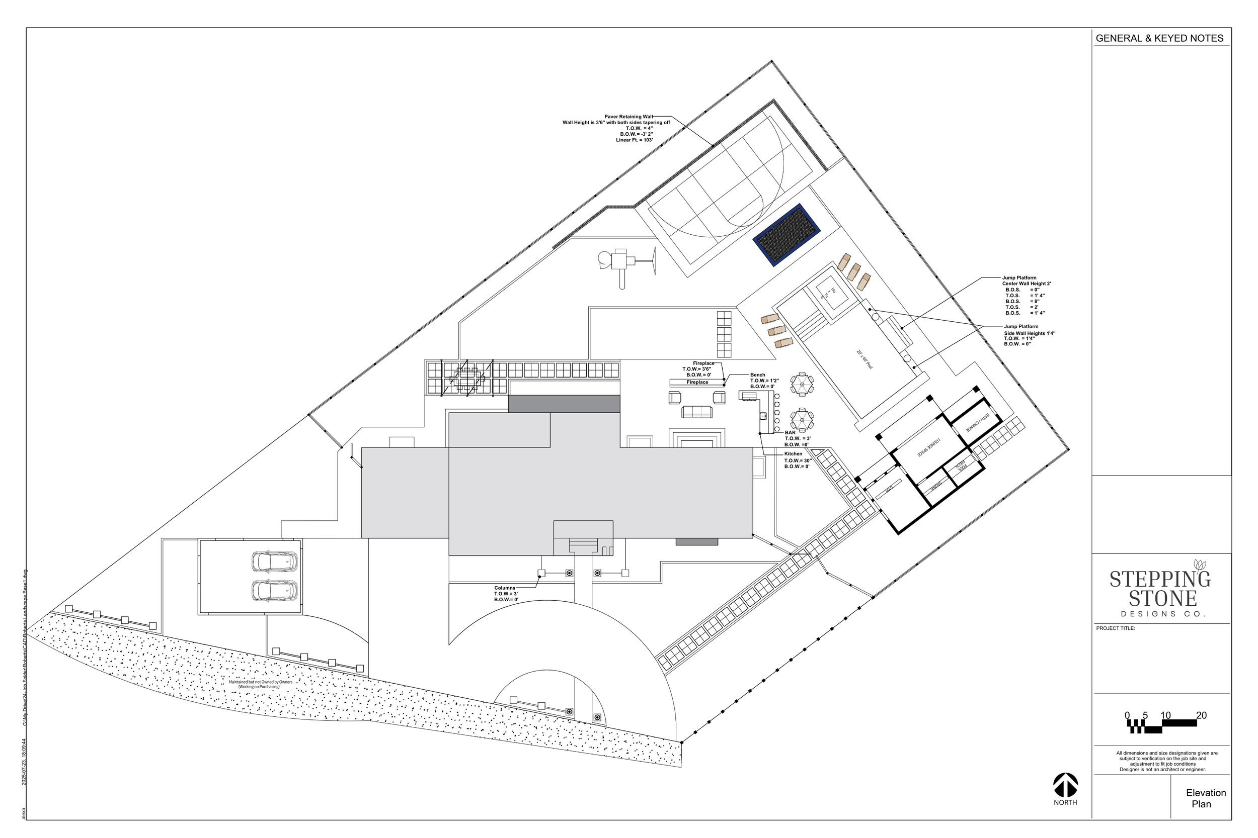
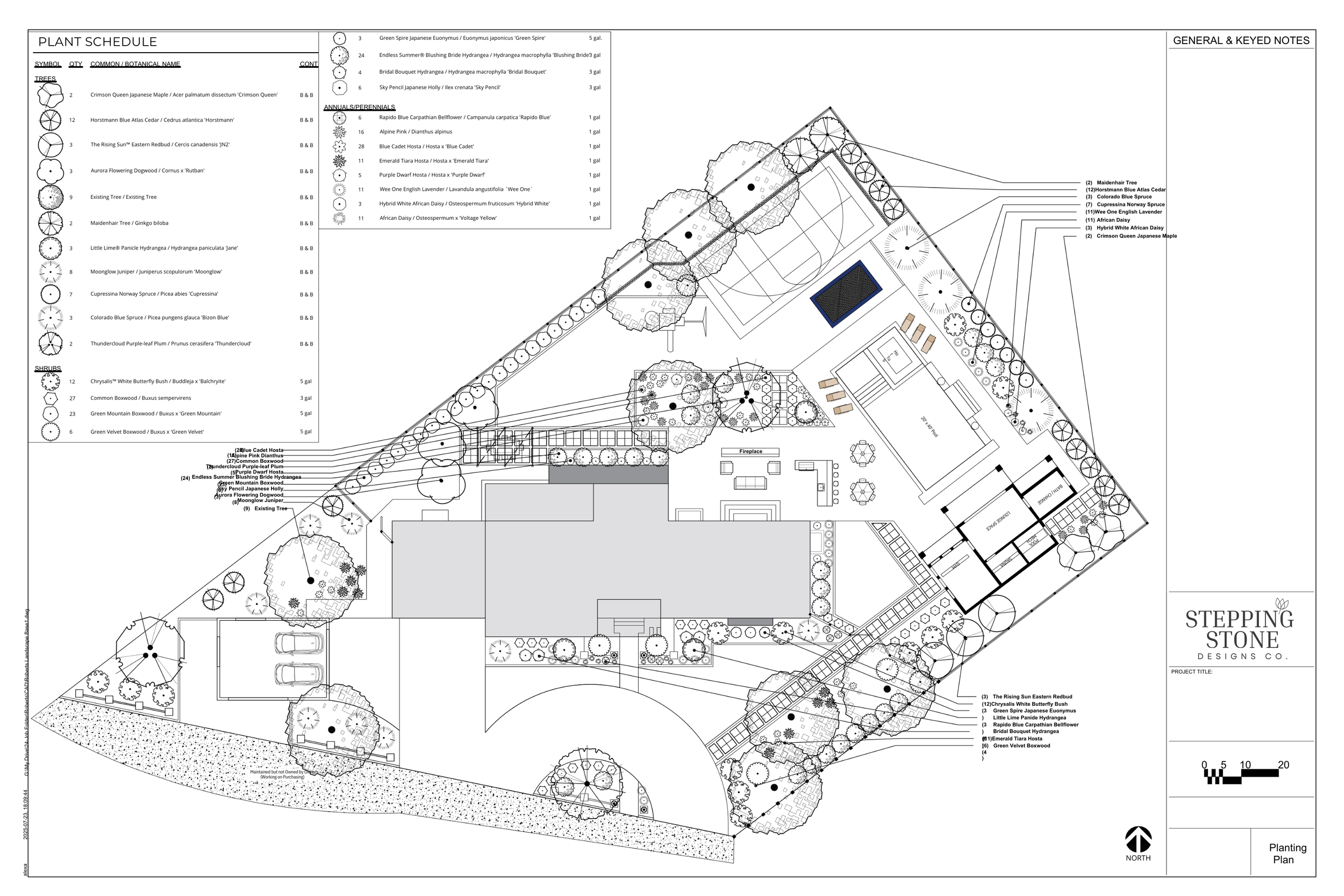
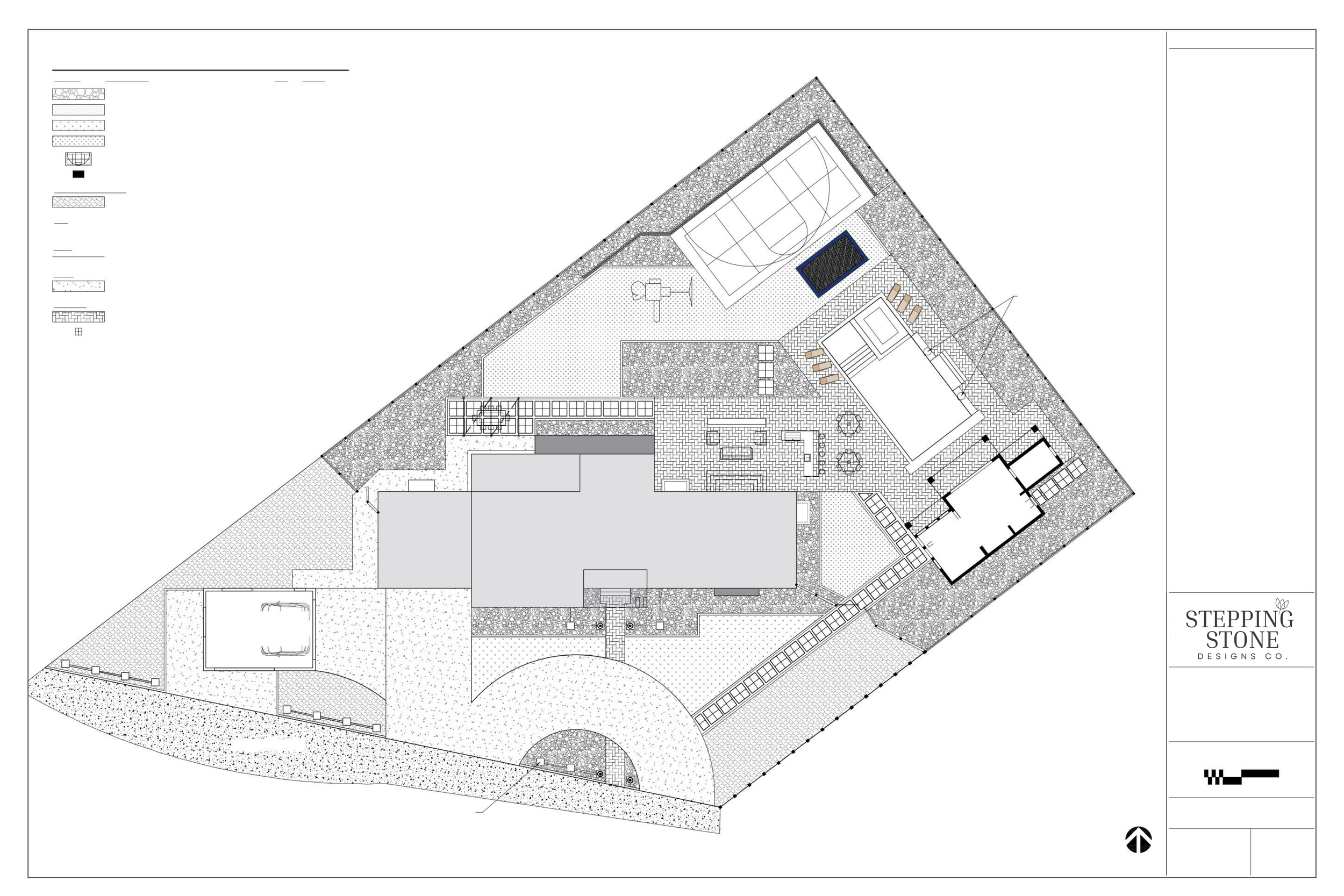
When you decide to create the landscape of your dreams for your existing house, but you have gorgeous, mature trees to preserve, you turn to Stepping Stone Designs. Our use of drone and ground scanners provides accurate data for designing around existing trees and structures.

While it’s impossible to save every tree when adding large features like a pool or sports court, we planned replacements and made incredible use of the privacy and shade the trees provide with thoughtfully placed entertainment and gathering spaces. This landscape offers a true haven for the whole family.

Previous
Previous

Mountain Modern Entertaining

Next
Next

Tiny Space, Major Impact